中古マンション
尼崎市
塚口アクシード 区分
基本情報
- 価格
- 4,680万円
- 種別
- 中古マンション
- 所在地
-
〒661-0011
兵庫県尼崎市東塚口町1丁目 1-5
- 交通
- JR福知山線 塚口 徒歩2分
詳細情報
- 学校区
- ー
- 土地面積
- ー
-
建ぺい率/
容積率 - ー
- 建物面積
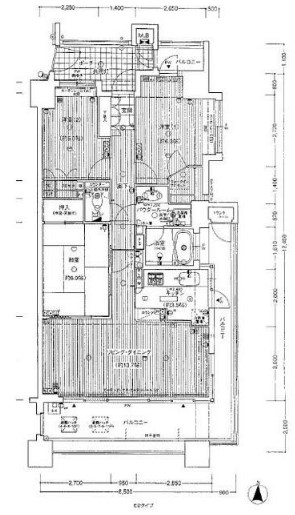
- 壁芯 75.61㎡
- 用途地域
- 1種住居
- 私道負担/道路
- ー
- 取引態様
- 媒介
- 間取り
- 3LDK
- 完成(築年月)
- 2002年02月
- 現況/引渡
- 相談
- 備考
-
■水回り:2025年10月 キッチン 浴室 トイレ
■内装:2025年10月 内装全面(床・壁・天井・建具)
設備:バス1坪以上 追焚機能 浴室暖房 浴室乾燥機 浴室に窓あり 温水洗浄便座 シャワー付洗面化粧台 3口以上コンロ 独立型キッチン カウンターキッチン アイランドキッチン システムキッチン 食器洗浄乾燥機 食器乾燥機 浄水器 キッチン床暖房 収納スペース 全居室収納 クローゼット ウォークインクローゼット トランクルーム 照明器具 室内洗濯機置場 洗濯機置場 給湯 都市ガス 複層ガラス 出窓 アルコーブ 床暖房 CATV インターネット対応 CATVインターネット オートロック モニタ付オートロック モニタ付インターホン ディンプルキー 火災警報器(報知機) 2面バルコニー ワイドバルコニー エレベーター 宅配BOX
管理費 9,800円/月
積立金 18,900円/月
自己使用目的でも、収益物件化でも用途は様々です!!フルリノベーションリフォームプランもご準備しております。解体しての建築もご計画お手伝いいたします。
収益物件化する場合の賃貸募集や管理などもまとめてお任せくださいませ。
なにから考えたらいいか分からない場合…一から一緒に悩ませていただきます。
内見ご希望の方もお気軽に日時をお伝えください!鍵の準備して現地に向かいます。